En Venta
USD700.000
Casa
VIDA Barrio Cerrado - Funes
Código: 206687

Av. Arturo Illia 397, S2132 Funes, Santa Fe, Argentina, Funes, Santa Fe, Argentina.

Compartir esta Propiedad

Descripción de la Propiedad

Casa en construcción en Vida Club de Campo – Lote 284

Entrega estimada: agosto 2026

Ubicada en Vida Club de Campo, uno de los barrios cerrados más consolidados y buscados de Funes, esta propiedad combina diseño contemporáneo, materiales de primera calidad y una distribución funcional pensada para el confort diario y la vida social.

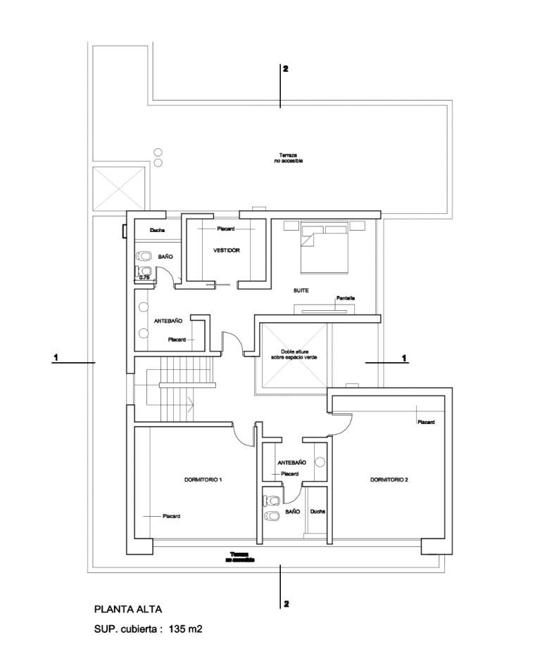
Desarrollada sobre un terreno de 800 m², la casa cuenta con una superficie total construida de 317 m², compuesta por 130 m² cubiertos en planta baja, 135 m² cubiertos en planta alta y 104 m² semicubiertos, logrando una excelente integración entre los espacios interiores y el jardín.

Al ingresar, la propiedad dispone de cochera cubierta para dos vehículos y un baño de recepción. En el sector social se encuentra una amplia sala de estar, que se vincula visualmente con el espacio verde exterior, generando una agradable sensación de amplitud y luminosidad. Este ambiente se conecta con el comedor principal y una cocina independiente, diseñada para ofrecer funcionalidad y comodidad.

En el sector más íntimo de la planta baja se ubican el lavadero independiente con área de tender, junto con el baño exterior que asiste al jardín y la piscina. El área social se completa con una generosa galería cubierta con parrillero, ideal para reuniones y encuentros al aire libre, además de contar con un espacio de depósito.

La planta alta está destinada al área privada de la vivienda. Allí se desarrollan dos dormitorios con placares, asistidos por un baño completo con antebaño, y una suite principal que se destaca por sus dimensiones y confort, equipada con vestidor, amplio antebaño y baño con ducha.

La propiedad ha sido proyectada con materiales de primera calidad y criterios constructivos modernos, ofreciendo ambientes luminosos, funcionales y pensados para una vida familiar confortable dentro de un entorno seguro y natural.

Precio: USD 700.000
Terreno: 800 m²
Superficie total construida: 317 m²
Entrega estimada: Agosto 2026

Mas detalles
  • Amoblado
  • Acepta mascotas
  • Pileta
  • En construcción
  • Parrilla
  • Seguridad 24hs.
  • Calefacción Central / Piso Radiante / Radiadores
  • Luminoso
  • Quincho
  • Patio
  • Comedor
  • Cochera
  • Cerca de Escuelas
  • Asfalto
  • Agua Corriente
  • Cloacas
  • Electricidad
  • Red Gas Natural
  • Entrada para Auto
  • Cocina Amueblada
  • Nicho para Gas
  • Barrio cerrado
  • Garita de seguridad
  • Internet / Wifi
  • Gimnasio
Ubicación